О квартирах нестандартной формы бытует много устаревших мифов, порожденных в основном потребительским «шоком» от новой архитектуры постсоветского покупателя, привыкшего к строгой геометрии типовых панельных домов. В действительности же необычная форма и планировка квартиры – это тренд. Эксперты Группы Родина показывают на примере квартир в Russian Design District практические плюсы закругленных форм жилья, а также дают советы по их дизайну и декору.
Звёзды рекомендуют
Для настоящих экспертов в творчестве и дизайне отступление от строгих форм квадрата или прямоугольника давно не преступление. В культурно-образовательном кластере Russian Design District сразу два жилых корпуса получили форму округлых башен от приглашенных «звездных» дизайнеров проекта – Вики Газинской и Валерия Гергиева.
Вика – один из самых известных молодых дизайнеров России, которая в 17 лет в 2006 году представила миру свою первую коллекцию одежды, ставшую сразу успешной. Она основала и построила один из топовых брендов модной одежды и, как приглашенный архитектор, инвестировала свои знания и творческий опыт в облик одного из зданий будущего культурно-образовательного кластера.
Валерий Гергиев – всемирно известный дирижер, худрук и директор Мариинки. В архитектурном проекте башни RDD он решил воплотить плавность форм музыкальных инструментов, ни один из которых, кстати, не имеет строгих геометрических черт. Именно это сочетание округлости, но в то же время симметрии рождает красивый и сложный звук. Так и в интерьерах, по замыслу автора, дуги и эллипсы в содружестве со строгими направляющими и радиусами будут рождать гармонию и уют.
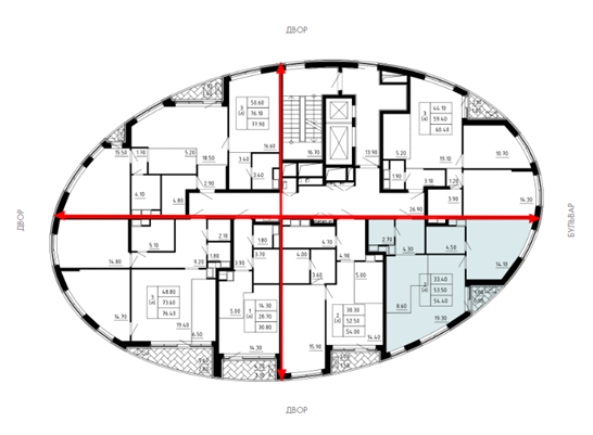
Итогом работы приглашенных экспертов стали два корпуса овальной формы – 2C (Дом Вики Газинской) и 4A (Дом Валерия Гергиева). Каждый этаж имеет соответственно закругленную фасадную стену и прямые внутренние перегородки. Причем крестообразные оси, разделяющие квартиры, не упираются в вершины овала, а смещены вправо. Так у клиента появляется выбор между квартирами с более плавной или более ярко выраженной дугой фасадной стены.
Какие плюсы такой формат планировок даёт покупателям и как обустроить квартиры с округлыми стенами?
Источник: Группа Родина
Больше престижа, солнца и креатива: 6 плюсов округлых квартир
Прежде всего, отмечают эксперты Группы Родина, круглых квартир как таковых не бывает. Только в самых авангардных проектах отдельных домов можно встретить помещение, имеющее только одну круглую стену. Даже если приобрести пентхаус в овальных корпусах Russian Design District, изогнутой будет только фасадная стена, а все внутренние перегородки будут пересекаться под прямым углом. При этом на фронтальной стене много окон, и это подчеркивает первый плюс овального корпуса.
Панорамный вид. Радиус прямого обзора из квартиры с овальной формой внешней стены шире, чем у обычной квартиры. Практически каждая квартира в овальном корпусе обладает преимуществом угловой в прямоугольном здании. Окна выходят минимум на три стороны света. Это значит, что в обзор попадет, к примеру и парк, и бульварный пейзаж, и внутренний двор, где играют дети. В больших квартирах предусмотрены 4-5 оконных проемов и 1-2 лоджии, то есть закругленная стена по определению функциональна и становится источником естественного света в помещении – это еще один плюс.
Улучшенная инсоляция. Панорамные окна с широким углом обзора позволяют проникать в помещение большему количеству солнечного света. В наших широтах, где солнце появляется нечасто и проходит невысоко над горизонтом, дополнительно «захватывать» естественное сияние помогает большая высота стен и, как следствие, оконных проемов. На типовом этаже в RDD высота потолков достигает 3,3 м, а в пентхаусах – 4,4 м. Соответственно житель квартиры с дугообразной внешней стеной получает широкий не только горизонтальный, но и вертикальный обзор – источник естественного света.
Эффективное зонирование. Участок закругления стены всегда привлекает к себе внимание посетителя квартиры. Это отличная зона, где можно создать семейное «место силы». К примеру, очень часто там ставят обеденный стол (тоже круглый), за которым собирается вся семья за завтраком или ужином. В гостиной у округлого участка стены можно организовать домашний амфитеатр с подиумом, окруженным мягкой мебелью. Здесь дети могут тренироваться в пении, танцах, музыке. Вариантов решений для зонирования округлых помещений масса. Дизайнеры охотно берутся воплощать креативные идеи в округлых помещениях.
Декоративный элемент. Округлая стена в маленьких помещениях – тоже плюс. Здесь она играет роль самостоятельного декоративного элемента. Её не нужно украшать, обставлять мебелью – необычная геометрия сама по себе привлекает внимание, и её можно подчеркнуть, к примеру, контрастным цветом стены, необычным узором, световым решением. При этом она никак не влияет на функциональность помещения, где оставшиеся перегородки имеют правильную форму.
Повод для креатива. В квартирах со свободной планировкой житель не ограничен в дизайне перегородок. Округлыми можно сделать и некоторые помещения внутри квартиры. Особенно часто дизайнеры любят устраивать своеобразную «перекличку» между дугообразными линиями. К примеру, в одной из квартир напротив круглой внешней стены с окнами дизайнеры сделали мини-библиотеку без окон в форме большой фальшколонны, напоминающую Храм тишины Kamppi в Хельсинки. Также можно обыграть, к примеру, ванную комнату.
Эксклюзивность. Часто ли вам приходилось бывать в квартирах с нестандартной формой, тем более округлой? Это большая редкость в России, где долгие годы господствовала утилитарная архитектура. Сегодня необычная квартира – это повод удивить гостей и один из способов самовыражения собственной креативности, чувства вкуса. Помимо этого, нестандартность жилья – плюс к продаже квартиры на конкурентном рынке «вторички». Правда, чтобы не умалить ликвидность необычной квартиры, нужно следовать ряду правил при ее отделке, выборе мебели и текстиля.
Как обустроить округлую квартиру
Эксперты Группы Родина рекомендуют придерживаться ряда правил при выборе стиля, отделочных материалов и мебели для нестандартной квартиры. Вот несколько советов дизайнеров Группы Родина.
Дизайн интерьера
В округлых квартирах прекрасно можно реализовать любой стиль – классика, неоклассика. Или, к примеру, хюгге – с мягкими одомашненными элементами и плавными формами. Фьюжн добавит интерьеру яркие цвета и многогранную композицию. Также дизайнеры Группы Родина рекомендуют стиль Ар-деко, который славится своим роскошным декором и цветом.
Стены
В целом для отделки дугообразных стен нет ограничений в выборе материалов. Однако наиболее практичным и доступным по цене будут окрашивание, декоративная штукатурка, венецианская штукатурка однотонные обои. Они наиболее неприхотливы к нестандартной форме стены, а широкий выбор цветовых решений при необходимости подчеркнёт округлость. Также можно использовать мягкие материалы (к примеру, пробковое дерево).
Полы
Напольное покрытие по своей структуре, фактуре и рисунку должно быть в некоторой оппозиции округлой стене, чтобы помещение не превратилось визуально в витиеватый коридор. Этому поспособствует плитка, паркет, ламинат, причем стыки должны быть направлены перпендикулярно округлой стене. Желательно соблюдать цветовой контраст, который также не даст «потеряться» необычной стене в помещении.
Потолок
Потолок – «союзник» округлой стены. Часто его делают фигурным и повторяющим линию изгиба стен помещения. Фактически потолок может стать завершением идеи округлости, которую нестандартная стена только намечает. Впрочем, эту роль может сыграть классическая или округлая люстра.
Мебель и декор
Закругленная стена – сама по себе элемент декора. Ей, как правило, не нужны дополнительные элементы и «соседи». Поэтому лучше «нагрузить» мебелью правильные стены комнат, оставив дугообразной перегородке роль источника естественного цвета. Украшать круглыми предметами круглую стену – ошибка. Напротив, геометрически правильные зеркала, картины, подвесные полки будут правильными решениями.
«Нужно понимать, что само понимание “стандартности” уже устарело, – говорит Ксения Юрьева, член совета директоров Группы Родина. – То, что было нестандартным для советской архитектуры 1980-х давно является нормой для мировой архитектуры. В том числе и необычные формы зданий и помещений. Современные отделочные материалы, технологии создания мебели, осветительных приборов, фурнитуры, освещения давно позволяют адаптировать для уютной и комфортной жизни любое помещение, независимо от формы стен. Более того, дизайнерские решения, декор помогают подчеркнуть явные плюсы необычных округлых квартир. В Russian Design District округлые дома являются высоко ликвидным объектом продаж».
Минимальная стоимость студии в Доме Вики Газинской в Russian Design District составляет 5,7 млн рублей (30,8 кв.м), двухкомнатной квартиры – 8,8 млн рублей (54 кв.м), трехкомнатной квартиры – 12,0 млн рублей (76,4 кв.м).
Минимальная стоимость двухкомнатной квартиры в Доме Валерия Гергиева в Russian Design District составляет 9,0 млн рублей (54,4 кв.м), трехкомнатной квартиры – 9,8 млн рублей (61 кв.м). Различные варианты округлых помещений представлены на сайте rdd.design.

Обсуждение Округлые решения – чем хороши квартиры в овальных домах