Трудно выбирать квартиру, когда ее невозможно увидеть. И не только саму квартиру, но и дом разрешается посмотреть только издали, через забор. Стройка, нельзя, опасно. Вот и остается всматриваться в прямоугольники планов будущего жилья, пытаясь представить, как все здесь будет светло и уютно, разглядывать на сайте компании-застройщика рисованные сцены из жизни будущего жилого квартала, да рыться в Интернете в поисках отзывов тех, кто квартиры этого застройщика уже купил.
Даже макетом будущего жилого квартала «Хорошевский» компания «МонАрх» не порадовала, а ведь макет для покупателя – дело святое, макет будит воображение и подпитывает мечты. А в пустынном офисе продаж «НДВ-недвижимость», в котором сидят и менеджеры компании «МонАрх-недвижимость», вам как будто говорят: «Заманивать клиентов наивной красотой кукольных домиков под плексигласом никто здесь не будет. Бери или иди!». Вот и остается покупателю, свесившись из окна, пытаться сделать снимки стройки.
Впрочем, самоуверенность девелопера можно понять. Новостройка бизнес-класса из 14 корпусов разной этажности строится в районе Хорошево-Мневники СЗАО столицы, который принято считать престижным, адрес ЖК «Хорошевский»: 3-я Хорошевская улица 7. Строит его компания «МонАрх УКС», входящая в группу «МонАрх», которая в рекомендациях не нуждается: двадцать лет на рынке, основательные связи с мэрией города, гарантирующие ее заказы, а также пристальный контроль, весь спектр строительных и девелоперских услуг от производства материалов и проектирования до продаж и управления недвижимостью.
Короче, выглядит все чрезвычайно основательно и надежно. И все же никогда не нужно стесняться посмотреть документы. Особенно, когда отдаешь кому-то деньги.
Итак, застройщиком ЖК «Хорошевский» является ООО «МонАрх-УКС», предприятие, учрежденное в 2014 году ГК «МонАрх» (98% акций) и ее основателем С. А. Амбарцумяном (2%). В разрешительных документах указано, что никаких иных объектов, кроме ЖК «Хорошевский», компания не строила. Именно на ООО «МонАрх-УКС» оформлены разрешение на строительство, договор аренды земли и проектная декларация корпусов жилого комплекса.
Земля, на которой ведется строительство ЖК «Хорошевский», это участки с кадастровыми номерами 77:08:0010004:10096 и 77:08:0010004:10094 общей площадью 125 000 кв. м, которые принадлежат ЗАО «Тепличное», ООО «МонАрх-УКС» их, как говорилось выше, арендует.
Однако на сайте ЖК «Хорошевский» значится имя другого застройщика, впрочем, входящего в ту же группу компаний «МонАрх», это «МонАрх-недвижимость», что позволяет говорить об успешном опыте строительной компании: ею построено уже два жилых комплекса: «Мосфильмовский» и «Богородский». Впрочем, должно ли нас волновать это несоответствие документов и сайта, если опыт ГК «МонАрх» огромен и безупречен и все компании входят в одну группу? Нет, не должен. Не будем разбираться, кто там кому дочка. Тем более, что и сотрудники ГК «МонАрх» сами путаются.
Группа известна тем, что выполняет технически сложные проекты. Например, подземная часть корпусов для центра детской хирургии Леонида Рошаля построили всего в 4 метрах от работающей ветки метро. Неудивительно, что проект признали лучшим в строительной отрасли 2010 года.
А еще на счету компании рекорд скорости: один из этажей дома на Бескудниковском бульваре площадью в 700 кв. м «МонАрх» построил за 48 часов, это достижение попало в Книгу Рекордов России.
И не будем вспоминать про дворец спорта «Мегаспорт», который был построен на Ходынском поле в 2006 году тоже очень быстро, старались успеть провести на льду дворца третий этап хоккейного Евротура. Правда, в 2012 году «Мегаспорт» закрыли на реконструкцию, объявили, что нужно укрепить несколько колонн. Укрепляли четыре года, и все же в 2016 чемпионат мира по хоккею проводили на других площадках Москвы и Петербурга. Бывает, тот не ошибается, кто ничего не делает.
Впрочем, ООО «МонАрх Недвижимость» в семье компаний группы «МонАрх» это какой-то тихоход: ЖК «Мосфильмовский» был сдан на три месяца позже сроков, ЖК «Богородский» – на 15, все это по сведениям сайта «Стройконтроль». ЖК «Хорошевский» пока строится точно по графику.
Первая очередь, корпуса 9,10,11 и 15, будут сданы в первом квартале 2017 года, остальные корпуса с разбивкой на два этапа: корпуса 12 и 12а – к середине 2018, корпуса 1-8 сдадут в четвертом квартале 2018 года. Корпус 14, который хорошо виден из-за забора, пока не продается, в нем по генплану расположатся апартаменты, как мне сказали в офисе продаж, этот дом будут переводить в жилой и тогда уже выставлять на продажу. В 2019 году заработает инфраструктура жилого комплекса, введут в строй социальные объекты: детский сад, школу и тир. Да, подземный тир длиной в 300 метров. Остальные-то жилые комплексы стараются привлечь покупателей бассейнами и спортивными залами, а здесь будет настоящий тир, в котором и олимпийскую команду можно готовить.
Корпуса монолитные, с кирпичной облицовкой. В кирпичной кладке используются материалы разных оттенков – в результате на каждом доме получится рельефный рисунок бежево-коричневых тонов. Однако, зная о возможностях монолитного строительства, которое используется для реализации необычных архитектурных проектов, я была сильно разочарована, когда увидела корпуса ЖК «Хорошевский». Архитектурный стиль жилого комплекса кажется, как бы сказать поточнее, классическим, сдержанным и неброским. Особенно по сравнению с находящимся в прямой видимости ЖК «Дом в Тепличном переулке» с его затейливыми башенками, имитирующими башни Московского Кремля.
Злые языки или вернее злые перья уже написали, что жилой комплекс строится прямо посреди промышленной зоны. Это не так. Да, напротив вы увидите трубы ТЭЦ-16, а по соседству, просто за забором стройки, а в будущем и охраняемой территории комплекса, пожарную станцию. В шаговой доступности (а значит, и постоянным звуковым фоном) проходит железная дорога, где-то недалеко автомобильный и кирпичный заводы. А что вы хотите? Это город, большой город, мы привыкли к его шуму, его дымке, его запаху. В конце концов, на территории ЖК можно выбрать квартиру в корпусах поглубже, подальше от ТЭЦ, с окнами, выходящими на жилые застройки. Специалисты говорят, что пар, выходящий из толстых труб ТЭЦ, для здоровья невреден, хуже с продуктами сгорания газа, они почти невидимы глазу, но урон окружающей среде наносят. Хотя газ ведь сгорает и почти на каждой кухне москвичей.
Экологически чистый район здесь никто не обещает. Парк «Березовая роща» далековато, минут 30 пешком, через дороги и переходы с коляской не пойдешь. «Серебряный бор» еще дальше. Надежда на саму территорию тепличного хозяйства, на которой идет строительство. Здесь ландшафтные дизайнеры обещают создать комфортную среду для отдыха и занятий спортом.
А кроме того, и сам район Хорошево-Мневники считается перспективным: город планирует создать здесь Парламентский центр, а в Мневниковской пойме в недалеком будущем построят ледовую арену ЦСКА и серфинг-парк «Волна». Ландшафт самой поймы тоже изменят: создадут четыре парка, которые будут соединены друг с другом велопешеходными мостами. Хотя и это все неблизко.
Кстати о внутренней территории комплекса. Вернее о парковке. Если вы посмотрите на генеральный план ЖК «Хорошевский», то там можно увидеть все 14 корпусов, детский сад, школу, спортивную площадку или стадион, административное здание, все это на довольно небольшой площади. К тому же дворы будут закрытыми, пешеходными. На плане со стороны улицы Берзарина около школы я увидела открытые парковочные места. Наверное, это гостевые стоянки? Нет, здесь не будет никаких стоянок, здесь будет построен еще одно нежилое здание. Проекта пока нет, но место пустовать не будет. Другими словами, актуальными как никогда становятся машиноместа на подземных парковках. Застройщик не объявляет количества машиномест, но уверяет, что их много, подземные парковки под каждым корпусом двухуровневые, а их число соотносится с числом квартир как 1:1. Машиноместа размером от 11 до 15 квадратных метров будут стоить от 1 300 000 и до 3 900 000 рублей. В корпусах второй очереди они пока не продаются. Так же, как и кладовки для хранения резины или, скажем, велосипеда, их стоимость начитается от 600 тысяч рублей.
И если уж говорить об окружении, нельзя не вспомнить о том, что «Хорошевский» далеко не единственный жилой комплекс, который строится в этом старом районе Москвы. Однако явное преимущество этого жилого комплекса в ценах на квартиры. Сравним цену и площадь однокомнатных квартир строящихся по соседству объектов.
|
Название ЖК |
Метраж, кв. м |
Цена, млн. рублей |
Срок сдачи |
|
«Хорошевский» |
37,8 |
6,5 |
1 квартал 2018 г. |
|
«Родной город. Октябрьское поле» |
44,0 |
7,4 |
4 квартал 2017 г. |
|
«Маршал» |
56,3 |
12,8 |
Сдан |
|
«Юнион Парк» |
37 |
9,8 |
4 квартал 2017 г. |
Замечательную среду обитания для нового жилого комплекса бизнес-класса создадут не только вокруг корпусов, но и внутри: просторные входные группы и холлы, отделанные в сдержанных бежевых тонах, бесшумные лифты, центральное кондиционирование воздуха, что обещает комфортный микроклимат круглый год как в квартирах, так и в местах общего пользования. «Погода для богатых» – вспоминается название романа Ирвина Шоу. Короче, никаких собственных кондиционеров за окном, а тем, кто любит тепло, лучше запастись отопительными приборами.
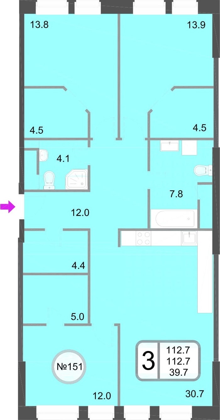
Квартиры разнообразны по размерам и планировке. Здесь есть студии 24 квадратных метра стоимостью меньше 4 миллионов рублей. А есть и трехкомнатные квартиры площадью 117 метров, которые обойдутся хозяевам почти в 24 миллиона. Кухни везде большие, от 14 до 34 метров. Балконов нет.
Посмотрим на цены июля 2016 года пристальнее.
Корпуса, строительство которых закончится в 1 квартале 2017 года: №№15,9,10,11
|
Количество комнат |
Общая площадь |
Размер кухни |
Цена |
|
1 |
37,8- 48,1 |
14,0-17,4 |
6,58 – 13,46 |
|
2 |
60,0-76,6 |
20,8-26,0 |
9,78 – 13,63 |
|
3 |
111,9-117,6 |
14,7-33,6 |
20,3 – 23,5 |
Корпуса, которые будут построены в 2018 году.
|
Количество комнат |
Общая площадь |
Размер кухни |
Цена |
|
Студия |
24,5 |
|
3,9-4,8 |
|
1 |
48,0-49,2 |
14,7-17,0 |
8,4-9,23 |
|
2 |
68,8-86,0 |
17,3-29.0 |
11,9 – 15,5 |
|
3 |
63,0- 114,3 |
14,8-34,0 |
11,3-20,28 |
Квартиры сдаются под черновой ремонт, коммуникации заведены в квартиру. В цене, как видим учтены и ТЭЦ под окном, и шум железной дороги, и четверть часа пешком до ближайшего метро. Другими словами, цены невелики для бизнес-класса, а квартиры хорошие, с удачной планировкой, кладовыми и гардеробными, дополнительными санузлами в трехкомнатных и даже двухкомнатных квартирах, огромными кухнями-столовыми. Тут и про отсутствие балконов забудешь.
Как купить? Вот тут опять начинаются сомнения. Квартиры «МонАрх» продает через ЖСК. Жилищно-строительный кооператив называется «Проспект» и является соинвестором застройщика, за что имеет от него часть площадей, которые и продает. Выбрав квартиру, новый пайщик вступает в ЖСК и получает на руки выписку из решения правления, в котором указан будущий адрес его недвижимого имущества и его цена. Теперь у него есть пять рабочих дней, чтобы внести деньги на счет ЖСК. Вот и все. Новый член кооператива должен еще подписать доверенность на председателя правления или кого-то из его членов, отдавая ему право голосовать от своего имени. Характер принимаемых от его имени решений он вряд ли узнает, да это никому и неинтересно. Договор не регистрируется, страхования сделки нет. Более того, каждый год кооператив собирает со своих членов взносы, по 10 тысяч рублей. За регистрацию права собственности нужно будет заплатить еще 30 или 50 тысяч. Все это в офисе компании «МонАрх-Недвижимость», на которую возложены обязанности агента по продаже.
Все оформление займет у вас пару дней. Если нужна ипотека, квартира вас подождет совершенно бесплатно столько дней, сколько нужно банку. «МонАрх» сотрудничает с ведущими банками страны, среди которых ВТБ, «Возрождение», «Банк Москвы», «Открытие». Минимальный первоначальный взнос 10%, ставки начинаются от 12,90% годовых, а максимальная сумма для займа составляет 30 млн. рублей. Условия неплохие.
Компания предоставляет покупателям скидки: 10-15% в зависимости от выбранного вами корпуса и размеров квартиры. Это при стопроцентной оплате или ипотеке. Если вы покупаете трехкомнатную квартиру, вместо скидки вам могут подарить машиноместо стоимостью до двух миллионов рублей.
В компании можно получить и рассрочку. До конца 2016 года действует беспроцентная рассрочка на все корпуса при условии внесения половины стоимости квартиры. Оплата производится ежемесячно равными платежами. Машиноместо можно купить в рассрочку на 12 месяцев без переплат с погашением ежемесячно равными долями.
Также покупателям квартир доступна рассрочка до ввода дома в эксплуатацию. Процентная ставка зависит от размера первоначального взноса и составляет от 8% до 11%.
Ну что здесь скажешь? По-моему, предложение очень привлекательное, и рассрочка есть, и скидки большие. А то, что риски не застрахованы и в руках вместо договора с застройщиком выписка из протокола ЖСК, подписанная неведомым вам правлением, так ведь речь идет о «МонАрхе», одной из самых надежных девелоперских компаний страны.
Но вот государству эта схема не нравится. Никаких ЖСК, никаких сделок без страхования рисков – так требует закон. Уже с сентября 2016 года все сделки по продажам квартир в ЖК «Хорошевский» будут производиться согласно 214-му федеральному закону РФ, по договору долевого участия. А риски застройщика, между прочим, были застрахованы в середине июля, и хотя менеджеры офиса продаж это отрицают, договор страхования уже вывешен на сайте компании. Собственность на землю переходит к ГК «МонАрх», ее выкупают у ЗАО «Тепличное», этот вопрос тоже вскоре будет решен.
Агенты по продажам подгоняют: принимайте решение, после 1 сентября цены подскочат так, что мало не покажется. Кто-то говорит, процента на 2-3, кто-то на 10-12. Программы скидок точно уйдут, видимо, будут новые, но не такие выгодные. «Большие риски – большие скидки» – сформулировал мне основной тезис инвестора менеджер офиса продаж Тимур.
С другой стороны, в сентябре у вас на руках будет ДДУ, оформленный в соответствии с 214-ФЗ, зарегистрированный в Росреестре, страховой полис и, учитывая репутацию ГК «МонАрх», сделка эта приобретет характер сверхнадежной. Но перестанет быть выгодной, по крайней мере такой, как сегодня.
Вопрос останется для пайщиков ЖСК «Проспект». Пока никто не знает, как перевести одну форму покупки недвижимости в другую. В компании меня заверили, что выписку из протокола ЖСК обязательно заменят на ДДУ, этого требует государство, и даже «МонАрх» вынужден этим требованиям подчиниться. Но когда и как, никто сказать не может.
Думайте друзья. В любом случае, еще одна информация. В ГК «МонАрх» есть и своя обслуживающая компания, она и станет заботиться о благополучии вашей недвижимости, когда ее введут в строй. Цены на коммунальные платежи мне уже назвали: 80 рублей с квадратного метра плюс все то, что вы заплатите по счетчику. Это раза в два выше среднего по Москве. И тут еще одна история. По нашему законодательству владельцы дома могут сами выбрать управляющую компанию и расторгнуть договор со старой. Именно это сделали в ЖК «Богородский», обнаружив, что навязанная им управляющая компания берет не обещанные 80 рублей с метра, а куда больше, они образовали инициативную группу и пошли в суд. Вся эта эпопея описана на форуме жильцов ЖК «Богородский». Выиграно уже четыре суда, сейчас идут еще три процесса, «МонАрх» сопротивляется, но и владельцы квартир не сдаются.
Впрочем, о коммунальных платежах у покупателей квартир в ЖК «Хорошевский» еще будет время подумать.
В заключение я бы сказала так. Район, в котором строится ЖК «Хорошевский», в целом неплохой для большого города, метро, хоть и не рядом, но в шаговой доступности, уже есть работающая инфраструктура старой Москвы. Квартиры будут не слишком большие, но интересной планировки и для бизнес-класса недорогие. Застройщик сверхнадежный, так что корпуса обязательно построят, даже если и опоздают. Управляющую компанию в случае чего можно поменять. Проект не самый выдающийся, но удачный, его стоит рассмотреть среди остальных. И не забудьте, что в других ЖК нет тира. Вдруг захочется пострелять? Время сейчас такое.
Автор: Анна Данилова
Специально для Квартирного Контроля





Обсуждение ЖК «Хорошевский»: свидание вслепую