В красивом-красивом месте, на берегу красивой-красивой реки стоит красивый-красивый дом с красивыми-красивыми квартирами... Это что за сказка так начинается? Нет, это самая настоящая московская быль, потому что Москва-река красива в любом месте, Шелепихинская набережная активно реконструируется и хорошеет, а квартиры в жилом комплексе «Сердце Столицы» спроектированы по наивысшим стандартам современного жилья. Новый ЖК строится по адресу город Москва, Северо-Западный административный округ, муниципальный округ Хорошево-Мневники, улица Шеногина, владение 1, Шелепихинская набережная, дом 34.
Как проехать
Проехать на личном автомобиле к новостройке от центра Москвы, например, от Александровского сада, можно по Новому Арбату, Кутузовскому проспекту и Третьему транспортному кольцу.
Расстояние небольшое, всего чуть более 11 километров, поэтому без пробок на дорогу уйдет около четверти часа. А если держать путь из области, то от 54А километра МКАД до ЖК расстояние в 14 километров преодолеете за 20 минут.
Можно легко добраться до комплекса и на общественном транспорте. Станции метро и МЦК «Шелепиха» расположены в полутора километрах от ЖК, это минут 20 спокойной ходьбы.
Но это пока, а в скором будущем прямо рядом с «Сердцем Столицы» откроют новую станцию метро «Звенигородская». После чего и транспортная доступность, и инвестиционная привлекательность проекта увеличатся в разы.
Что строят
На территории 15 гектаров у набережной Москвы-реки строится мини-город, состоящий из десяти корпусов бизнес-класса высотой от 19 до 41 этажа.
Строительство ведется по монолитной технологии в три этапа. Два из них уже реализованы, причем сдача жилых корпусов в эксплуатацию происходила с опережением заявленных сроков.
В настоящее время в продаже остались только квартиры в корпусе № 10, сдача которого в эксплуатацию завершит весь проект в 2025 году.
В доме высотой 41 этаж будет построена 1071 квартира. Входные группы организованы как лобби фешенебельного отеля. Потолки высотой от 4,45 до 4,85 метра с дизайнерской отделкой, круглосуточной зоной ресепшен и мягкими зонами ожидания. Помещения для хранения велосипедов, комнаты для мытья лап домашних животных тоже имеются.
Подъезды сквозные, с выходом на внешнюю территорию и закрытый внутренний двор. Доступ на территорию и в подъезды контролируется по видеосвязи единой диспетчерской службой.
Под зданием будет оборудован двухэтажный подземный паркинг на 212 машиномест площадью от 13,3 до 26,6 кв.м. В паркинге могут быть установлены зарядные системы для электромобилей.
Корпус № 10 двухсекционный, на одном этаже в секции от 11 до 14 квартир. В каждой секции установлено по 6 скоростных бесшумных лифтов фирмы Шиндлер, причем вход в грузовые лифты не из лобби, а со двора. Класс энергоэффективности «A» (высокий), что обеспечит хорошую тепло- и шумоизоляцию квартир. Сбор бытового мусора организуют на придомовой территории, для этого оборудуют 5 специальных площадок.
В жилом комплексе планируется построить парк, стадион, школу и детский сад. И если парк и стадион однозначно будут общественными пространствами, то статус образовательных учреждений пока не определен. Не исключено, что они будут частными. По крайней мере, в проектной декларации эти объекты не упоминаются как заказанные муниципалитетом. На первых этажах разместятся коммерческие структуры.
Квартиры сдаются без отделки. В них будет установлена качественная металлическая дверь, приборы отопления с горизонтальной разводкой, оконные конструкции из профиля ПФХ фирмы Рихау высотой 2,5 метра и подоконником в 60 сантиметрах от пола. Окна оснастят специальными клапанами для обеспечения вытяжной вентиляции. Высота потолков в квартирах до 3,2 метра на типовых этажах и до 3,4 метра на верхнем этаже. Естественно, в квартиры будут заведены электричество мощностью от 12 до 18 киловатт, вода, а также разнообразные слаботочные системы, включая высокоскоростной доступ в Интернет, кабельное телевидение в формате HD и системы безопасности.
В таблице ниже приведены некоторые технические данные по корпусу №10.
Таблица 1.
|
№№ корпуса |
Кол-во этажей |
Общая площ. застр. (кв. м.) |
Кол.секц.
|
Общее кол-во квартир/ машиномест/кладовых/ /нежил.пом |
Дата выдачи разр. на стр-во |
Окончание срока действия разр. на стр-во |
Предполагаемая дата введения в эксплуатац. |
|
10 |
41+2 подз |
2149 |
2 |
1071/267/41/6 |
04.08.2021 г. |
04.08.2025 г. |
3 квартал 2025 г. |
В настоящее время работы на корпусе № 10 ведутся на этапе котлована. Застройщик планирует передать ключи 10 мая 2025 года.
Кто строит
Строительство на земельном участке с кадастровым номером 77:08:0012005:7394 ведет ООО «Специализированный застройщик «Сердце Столицы», основанное в августе 2020 года. Учредителем компании выступает акционерное общество «СК ДОНСТРОЙ».
Земельный участок принадлежит застройщику на праве собственности. За последние три года застройщик не вел никакого жилищного строительства. Но этот малоизвестный застройщик является частью глобальной структуры - девелоперской компании «Донстрой», крупнейшей в России.
Проект «Сердце Столицы», крупнейший по масштабам в столичной практике «Донстроя», стал победителем престижных строительных конкурсов Правительства Москвы и премии Urban Awards.
Генеральный подрядчик - турецкая компания ООО «АНТ ЯПЫ».
Данный проект является частью глобального плана московских властей по редевелопменту промышленной зоны «Южный Порт». Ранее на этом месте размещались предприятия по производству вредной с экологической точки зрения продукции. Например, в 50 метрах от строящегося корпуса № 10 работает Краснопресненский завод железобетонных конструкций ДСК -1.
Но уже в ближайшие семь лет на территории около 40 гектаров будет создан крупный урбанистический кластер, подобный «Москва Сити» - «Москва Сити - 2». Компании AEON Corporation и «Ферро-Строй» объявили международный конкурс на лучший проект застройки первой части промзоны. Современные жилые кварталы, благоустроенные набережные и новые станции метро сделают эту территории настоящим сердцем Москвы, но не «железным», а человеческим. И жить здесь будет по-настоящему комфортно.
Сайт
Сайт новостройки https://donstroy.com/objects/serdtse-stolitsy отражает все аспекты новостройки, от концепции до документации.
Пользователь найдет здесь красочное описание счастливой жизни в окружении природы, с велосипедными прогулками и отдыхом у реки.
С другой стороны, подробная карта доступных инфраструктурных объектов покажет удобство и комфорт городской жизни.
Удобный механизм покупки квартиры позволит прямо на экране компьютера выбрать и забронировать понравившуюся по планировке и цене квартиру.
А реальный ход событий на строительной площадке покажут фоторепортажи и онлайн-камера.
Дополнительную информацию можно получить в соцсетях и на ресурсах, созданных покупателями квартир в данном ЖК.
https://www.serdtse.su/
https://vk.com/jkserdcestolici
Офис продаж
Офис продаж размещается в одном из сданных корпусов, рядом с центром красоты «Круа».
Помещение идеально приспособлено для общения с потенциальными покупателями.
Удобные рабочие места менеджеров по продажам, оснащенные современной офисной техникой, многочисленные макеты жилых комплексов, возводимых девелопером, в том числе и «Сердца Столицы».
Есть уютная зона ожидания, ресепшен с приветливым сотрудником, детская игровая площадка. Кофе, чай, красочная печатная продукция тоже в ассортименте. Есть даже миниатюрная выставка отделочных материалов.
Тем, кому не хватит информации на сайте, лучше всего побывать в офисе продаж - специалисты квалифицированно и непредвзято ответят на любые вопросы. Например, насколько возрастет инвестиционная привлекательность проекта через 3 - 5 лет. Поверьте, намного.
Сколько стоит
В таблице ниже приведены цены на квартиры в корпусе № 10
Таблица 2.
|
Тип квартир |
Площадь (кв. м) |
Стоимость квартир (руб.) |
Стоимость одного квадратного метра (руб.) |
|
Студии |
29,5 - 35,0 |
11 813 777 - 14 091 000 |
400 467-402 600 |
|
Однокомнатные |
42,0 - 45,8 |
17 026 800 - 17 810 600 |
405 400-388 878 |
|
Двухкомнатные |
65,3 - 71,8 |
23 116 200 - 25 998 780 |
354 000-362 100 |
|
Трехкомнатные |
83,0 - 87,4 |
32 062 900 - 29 383 880 |
386 300-336 200 |
|
Четырехкомнатные |
109,3 - 110,2 |
35 926 910 - 37 148 920 |
328 700-337 105 |
Средняя цена квадратного метра в новостройке составляет 370 175 рублей.
Познакомимся с ценами на двухкомнатные квартиры с ремонтом и без в новостройках бизнес-класса у других застройщиков Москвы.
Таблица 3.
|
Название ЖК |
Ближайшая станция метро |
Площадь Квартир (кв. м.) |
Стоимость квартир (руб.) |
Стоимость одного кв.м. (руб.) |
Отделка |
Срок сдачи |
|
«Событие» |
«Мичуринский проспект» |
67,2 |
24 346 560 |
362 300 |
Есть |
3 квартал 2025 г. |
|
«Шелепиха» |
71,8 |
25 998 780 |
362 100 |
Нет |
3 квартал 2025 г. |
|
|
«Коломенская» |
45,5 |
15 839 460 |
348 120 |
Нет |
2 квартал 2024 г. |
|
|
«Шелепиха» |
66,76 |
22 267 795 |
333 550 |
Нет |
2 квартал 2024 г. |
|
|
«Дмитровская» |
58,2 |
18 043 640 |
310 028 |
Есть |
2 квартал 2025 г. |
|
|
«Шагал» |
«Технопарк» |
62,3 |
18 087 958 |
290 336 |
Нет |
4 квартал 2023 г. |
|
«Минская» |
76,9 |
22 277 314 |
289 692 |
Есть |
2 квартал 2024 г. |
|
|
«Сити Бэй» |
«Трикотажная» |
53,1 |
13 727 306 |
258 518 |
Есть |
2 квартал 2024 г. |
Как видно из таблицы, лидирует «Сердце Столицы».
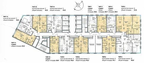
Планировки
На продажу выставлены квартиры-студии, одно-, двух-, трех- и четырехкомнатные квартиры площадью от 28 до 111 кв.м.
Планировка студий проста и понятна. Входная зона площадью от 4,5 до 7,5 кв.м., совмещенный санузел площадью от 4,0 до 5,6 кв.м., универсальное помещение площадью от 18,8 до 23,0 - и все. Никаких кладовок и балконов. Оригинальность находим, разве что в наличии двух маленьких окон вместо одного большого в кухне-гостиной-спальне.
Однокомнатные квартиры располагают входной зоной площадью от 4,9 до 7,0 кв.м., совмещенным санузлом площадью от 4,5 до 5,0 кв.м., кухней площадью от 11,7 до 22,2 кв.м. и спальней площадью от 12,3 до 18,8 кв.м. Иногда встречается гардеробная площадью 4,3 кв.м. а в угловых квартирах может быть по два окна в одном помещении, причем одно из них - угловое.
Двухкомнатные квартиры предоставляют собственнику возможность пользоваться входной зоной площадью до 15 кв.м. с учетом внутреннего коридора, раздельным санузлом с площадью помещений от 2,9 до 6,3 кв.м., кухней площадью от 15,9 до 20,6 кв.м. и двумя спальнями площадью от 14,2 до 17,9 кв.м.
В трехкомнатных квартирах запроектирована входная зона площадью от 9,6 до 12,9 с учетом внутреннего коридора, раздельный санузел или два полноценных санузла с площадью помещений от 3,3 до 5,7 кв.м., кухня площадью от 14,3 до 17,7 кв.м., две спальни и гостиная площадью от 11,2 до 19,0 кв.м.
Четырехкомнатные квартиры начинаются с входной зоны площадью около 15 кв.м. с учетом внутреннего коридора и продолжаются двумя полноценными санузлами с площадью помещений от 4,5 до 6,0 кв.м. Далее следуют кухня площадью от 17,4 до 18,0 кв.м., три спальни и гостиная площадью от 12.6 до 19,8 кв.м.. Встречаются комнаты с двумя окнами, одно из которых - угловое.
Обратите внимание - ни в одном из типов квартир не применяются европланировки и не проектируются балконы.
Как купить
Покупка квартиры осуществляется в соответствии с федеральным законом № 214. Денежные средства дольщиков привлекаются через открытие эскроу-счетов в банке ВТБ, покупка оформляется через договор долевого участия.
При 100% оплате покупателям предоставляется скидка в размере 3% от стоимости квартиры. Менеджеры компании помогут оформить ипотечный кредит на выгодных условиях. Например, в банке ВТБ можно получить под 7,6 % годовых. Если ставка не субсидирована, на ипотечный кредит можно также получить скидку 3%.
Бронировать выбранную квартиру можно на 5 рабочих дней. Эта услуга стоит 50 000 рублей, которые входят в стоимость квартиры. Есть рассрочка на 2 года. Нужно сразу внести 30% стоимости и потом выплачивать остальное ежемесячно равными долями.
Никаких других расходов покупатель не несет. Например, регистрация договора долевого участия в госорганах пройдет за счет компании.
Инфраструктура
Вся инфраструктура необходимая для комфортной жизни уже создана, поскольку 8 из 10 корпусов уже сданы, заселены и насыщены предприятиями торговли и сферы услуг.
На территории комплекса есть трехэтажный торговый центр, фитнес-центр с 25-метровым бассейном.
Есть продуктовые и промтоварные магазины, аптеки, банки, автосервис - все в шаговой доступности.
Несколько сложнее ситуация с образовательными учреждениями, которые находятся в отдалении и уже полностью загружены. До детского сада 1,2 километра, до Романовской школы 1,7 километра. Найдется ли в них место для детей новоселов - это большой вопрос, который будущие жители уже задают друг другу в Интернете.
До ближайшей поликлиники полтора километра, можно и пешком дойти. А вот до больницы - 15 минут на машине и 40 минут на автобусе. Совсем не рядом.
Резюме
«Сердце Столицы» - знаковый для Москвы проект. Масштабность, оригинальность архитектурных и дизайнерских решений, яркая концепция благоустройства, включающая не только дворовые пространства, но и набережную Москвы-реки делают новый жилой комплекс своего рода визитной карточкой обновления промышленных зон столицы.
Этот ЖК и строящиеся радом «Сидней-Сити» и «Левел Причальный» создадут в недалеком будущем подлинное инфраструктурное изобилие, а близость к культурным центрам столицы придаст жизни обитателей насыщенность и шарм.
Рядом река, которая не только даст прохладу в жаркий летний день, но и может стать транспортной артерией для вашей яхты. До пристани «Москва-Сити» 2,6 километра по прямой, до пристани «Верхние Мневники» 1,6 километра по прямой.
Надежный застройщик, огромный выбор планировок, прекрасная локация и высокая транспортная доступность - чего еще надо новоселу? Единственная проблема - высокая цена квадратного метра, но это ведь метры не где-нибудь, а в самом сердце столицы нашей Родины.
Автор: Андрей Петров
Специально для Квартирного контроля











Обсуждение ЖК «Сердце Столицы»: на яхте прямо к дому