Олимпийский (29-й) микрорайон г.о. Мытищи в ближайшие 10 лет ожидает серьезное обновление. На смену двух-пятиэтажным домам придут высотные многоэтажки, в которых будет более 500 000 квадратных метров жилья. Первый дом из запланированных восьми построен и уже введен в эксплуатацию, второй планируется сдать в конце 2018 года.
Предварительная разведка
Официальный сайт ЖК «Стрелковая, мкрн. 29» (https://msk29.ru) показался мне вполне информативным и удобным. Тут можно найти рассказ об объекте строительства, посмотреть фотографии со стройплощадки и найти проектную документацию. Особенно мне понравились вкладки «как добраться» (предельно доходчиво о каждом из видов транспорта) и «инфраструктура района» (объекты показаны на карте, плюс указано расстояние до каждого из них).
Общая информация о Комплексе такова. Строительство ведется на территории г. Мытищи, в микрорайоне «Олимпийский». В планах Застройщика возвести тут минимум восемь многоквартирных домов. Один из них – 5-секционный корпус 13 переменной этажности – уже построен и введен в эксплуатацию. Следующий на очереди – 25-этажный корпус 14, который будет сдан госкомиссии в конце 2018 года. О сроках возведения остальных домов информации пока нет, но известно, что все строительство планируется завершить к 2028 году.
Выбрать квартиру в корпусе 14 можно, воспользовавшись генпланом либо инструментом подбора по параметрам.
Кстати, этот инструмент вроде бы предлагает одновременно рассчитать и ипотеку в целом списке банков – но эта возможность почему-то не работает (будем надеяться, что создатели сайта заметят свою ошибку и все исправят).
Есть, впрочем, отдельный ипотечный калькулятор.
Сам же подбор по параметрам вполне удобный, результаты мгновенно можно отсортировать по этажности, площади или цене. Жаль только, нет возможности открывать варианты в новом окне – после просмотра планировки приходится снова возвращаться в таблицу.
Есть также возможность выбрать машиноместо на генплане. Таблицы с ценами нет, «перебирать» варианты придется поэтажно.
Строительство ведется на участке с кадастровым номером 50:12:0000000:54410 площадью 16223 кв. м. Участок принадлежит Застройщику на правах аренды (сроком до 1 декабря 2020 года).
Застройщик – ООО «МСК» («Мытищинская Строительная Компания») – начала свою деятельность в 2009 году. ОО «МСК» входит в состав Девелоперской Группы компаний «Технострой» (http://www.gk-tehnostroy.ru), работающей с 1998 года в Москве и МО.
Разведка боем
ЖК «Стрелковая, мкрн. 29» располагается, как нетрудно догадаться, на улице Стрелковой – в г.о. Мытищи. Автомобилисты могут добраться до Комплекса по Волковскому или Ярославскому шоссе, расстояние до МКАД – 10-11 км, в пути придется провести 15-25 минут.
Если вы передвигаетесь общественным транспортом, то у вас есть два варианта. Первый – воспользоваться маршруткой от ст. м. «Бабушкинская» – и за 65 рублей и 45 минут добраться практически до самой Новостройки.
Второй вариант – электричка, которая за 35 минут и 66 рублей довезет вас от Ярославского вокзала до ст. Мытищи. Можно также воспользоваться скоростным РЭКСом: он ходит нечасто, стоит вдвое дороже – зато время в пути сокращается до 18 минут. На станции Мытищи придется пересесть на маршрутку, которая довезет вас до Комплекса минут за 10-15. Если же вы любите пешие прогулки, доехать можно до платформы «Челюскинская» или «Строитель» – от них до Новостройки около двух километров.
Я решила разведать путь к Комплексу от платформы «Челюскинская»: на карте он выглядит более «зеленым». Станция «Челюскинская», судя по всему, малопопулярна у жителей этого района: со мной из электрички вышло всего человек пять.
Чуть позже я поняла, почему: окрестности платформы представляют собой тихие зеленые дачные участки среди величественных сосен, и плотность населения тут, очевидно, довольно низкая.
Пеший путь от «Челюскинской» до Новостройки займет минут двадцать пять – между уютных домов и домиков, между высоких заборов, деревенских колонок с водой и пруда с уточками.
Общественный транспорт тут не ходит, да и автомобиль за всю дорогу мне встретился только один. Настоящий тихий дачный поселок, шумят деревья и птички поют.
Окончанием пасторальной идиллии можно считать конечную остановку маршрутного автобуса 567, который, собственно, и связывает микрорайон со ст. м. «Бабушкинская».
Метров через сто от остановки заканчивается пастораль и начинается «цивилизация».
Район «Олимпийский» это своего рода «вещь в себе», и к Мытищам он относится лишь территориально. По сути, это конгломерат домов самого разного возраста – от современных многоэтажек до двухэтажных построек середины прошлого века.
Для человека, привыкшего к московской «географии», тут много необычного. Здесь можно найти новомодные детские площадки и спортивные комплексы, а завернув за угол, обнаружить тенистые дворы с деревянными еще довоенными лавочками и без намека на современное обустройство.
Автомобилей – не просто мало, а очень мало. Где-то за заборами в дачном поселке петухи кричат.
Этакий сонный микрорайон «под боком» у шумного мегаполиса. Впрочем, забегая вперед, скажу: эти домишки и дворики доживают последние годы, вскоре на их месте обещают вырасти современные высотные здания – продолжение Комплекса.
Само по себе расположение микрорайона довольно неоднозначное. С двух сторон от него – тихий дачный поселок и Пироговский лесопарк, а за железной дорогой – Челюскинский лес. Однако самое ближайшее окружение домам составляют промзоны с рядами маложивописных складских помещений и автомастерских.
Но вернемся к самому ЖК. Корпус 13 является своего рода «визитной карточкой» будущего микрорайона: по его облику можно судить, какими будут все остальные дома и дворы.
Во дворе дома находится паркинг на 300 машиномест.
14 корпус строится в паре десятков метров от уже заселенного дома.
Все 25 этажей корпуса 14 уже достроены, ведутся работы по утеплению фасада.
До сдачи дома в эксплуатацию осталось пять месяцев. Мне трудно судить, успеет ли Застройщик за это время провести все фасадные и внутренние работы – но, как говорится, поживем – увидим. Снаружи, по крайней мере, дом выглядит практически готовым.
С западной стороны от дома проходит двухполосная дорога – узенькая и не особенно оживленная, проезжает пара машин в минуту. По другую сторону дороги – склады и автомастерские, а также спортивный стрелковый клуб (попросту – стрельбище).
Что касается окрестной инфраструктуры, то в шаговой доступности можно найти несколько супермаркетов (один прямо возле стройплощадки), парочку аптек, зоомагазин, взрослую и детскую поликлинику, отделение Сбербанка, два детских сада и школу.
Один из детских садов располагается тоже бок о бок со строящимся корпусом. В будущем, впрочем, этот детсад снесут – на его месте предполагается строительство нового высотного дома. Однако до сноса старого детского сада Застройщик обещает построить и открыть новый.
Что же касается кинотеатров, кафе и аттракционов – все это придется искать либо в центре Мытищ, либо в Москве. Пироговский лесопарк, Пироговское водохранилище и Челюскинский лес тоже находятся не так чтобы близко – от получаса до полутора часов пешком, или 10-15 минут на авто.
Офис продаж ранее располагался в небольшом павильончике у подножия корпуса 14, но теперь переехал – в 4 подъезд дома по адресу Стрелковая, 6 (тот самый корпус 13). В этом помещении располагается и управляющая компания Комплекса.
В офисе вам выдадут буклет с планировками, расскажут о строящемся доме и о планах застройки микрорайона. Информация, которую мне сообщили в офисе, кстати, несколько расходится с данными, которые есть на официальном сайте.
В частности, корпус 14 на сайте выглядит словно арена стадиона:
В реальности от «стадионного» облика решили отказаться. Уже построенные к нынешнему моменту секции 5-8 будут дополнены лишь тремя 19-этажными секциями с северной стороны дома. А вот секции 9-15 возводиться, вероятнее всего, не будут.
Итак, повторяем, чтобы не запутаться: уже возведенные монолитные секции 5-8 будут сданы в эксплуатацию в конце 2018 года, всего в них будет 496 квартир.
В августе 2018 Застройщик готовил площадку для возведения секций 2-4, расположенных севернее. Эти три секции планируется сделать панельными – их должны построить к концу 2019 года (старт продаж запланирован на осень 2018). Всего в этих трех секциях будет 252 квартиры и 60 кладовых помещений в подземном этаже. Внешний облик здания при этом будет единым: и поверх панелей, и поверх монолита будет уложен утеплитель, а наружная облицовка будет выполнена керамогранитной плиткой – такой же, как и на стенах корпуса 13. Так что визуально отличить, где монолитные, а где панельные секции, будет невозможно.
И еще об изменениях в первоначальном проекте. Детский сад на первом этаже 14 корпуса, заявленный на сайте, также решено не делать. Садик будет отдельным зданием, а помещения на первом этаже будут отданы под коммерческие цели.
Что касается расположенной поблизости школы, то ранее была информация о том, что ее будут реконструировать. Однако в офисе продаж мне сообщили, что теперь в планах – постройка новой школы, а не пристройка помещений к уже действующей. Точных сроков строительства, впрочем, пока не объявлено.
Претерпел изменения и предварительный генплан всего микрорайона. Вот как генплан изображен на сайте:
Однако в реальности, скорее всего, район будет выглядеть иначе. Дома, по словам менеджера, решено сделать более «компактными», состоящими из 2-3 секций. Однако проектных деклараций по следующим корпусам пока нет, так что все это – только предварительные сведения.
Что предлагают
Цены на квартиры в ЖК «Стрелковая, мкрн. 29» в начале августа 2018 года выглядят следующим образом:
|
Квартира |
Площадь, кв. м. |
Цена, млн руб.* |
||
|
От |
До |
От |
До |
|
|
1-к |
36,27 |
43,70 |
2,775 |
3,900 |
|
2-к |
52,31 |
73,80 |
3,602 |
5,904 |
|
3-к |
75,88 |
83,82 |
5,115 |
5,673 |
* цены приведены с учетом скидки в 16-18% ко дню Строителя
Квартиры будут сдаваться жильцам без отделки, без стяжки и межкомнатных перегородок. Исключение – санузлы, в них будут возведены стены и выполнена гидроизоляция. Сантехника разведена до стояка, электрика до щитка, установлены радиаторы и двухкамерные стеклопакеты на окнах. Также будет выполнено остекление балконов. Входная дверь – средней ценовой категории. Высота потолков – 2.8 м.
При желании будущие жильцы смогут заказать у Застройщика черновую отделку: в нее входит возведение межкомнатных перегородок, выравнивание стен, стяжка пола, разводка электрики по квартире. Обойдутся эти работы в 6 тысяч рублей за квадрат площади.
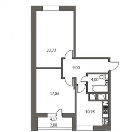
Планировочный ряд выглядит не очень широким, но все же выбрать есть из чего. Вот, например, однокомнатные:
Отмечу, что в каждой квартире предусмотрен балкон.
Есть однокомнатные формата «евро-двушки», с большой кухней-гостиной.
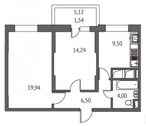
А вот четыре варианта двухкомнатных. Тут есть как «стандартные» планировки, так и необычные.
Так выглядит, например, квартира с пятиугольными комнатами.
А вот уже привычные глазу варианты планировок:
Трехкомнатные – в меньшинстве, их всего две вариации, и обе «распашные». Отметим, что в трехкомнатных квартирах раздельные санузлы.
В подъезде от 4 до 9 квартир (самая «населенная» секция – пятая) и по три лифта, два пассажирских и один грузовой. На первом этаже предусмотрено место для консьержа.
В паркинге на 300 машиномест можно купить место по цене от 420 тысяч рублей (цена со скидкой). Кроме того, в цокольном этаже паркинга продаются кладовые помещения – по цене от 197 тысяч рублей за 5.4 квадратных метра.
Как купить
Купить квартиру в ЖК «Стрелковая, мкрн. 29» можно следующим образом:
Первый этап – письменное бронирование на срок до двух-трех недель. Стоит эта услуга от 50 тысяч рублей для однокомнатной квартиры, далее цена увеличивается в зависимости от площади жилья. Впоследствии эти деньги войдут в общую стоимость квартиры.
Следующий этап – подписание Договора Долевого участия и регистрация его в рег. палате. Услуга эта также платная, заплатить придется примерно столько же, сколько и за бронирование (и эта сумма также войдет в общую стоимость квартиры). После регистрации (которая занимает около 10 рабочих дней) покупатель переводит на счет Застройщика оставшуюся часть суммы.
Ипотека предоставляется внушительным рядом банков (полный список вместе с калькулятором – тут: https://msk29.ru/mortgage/calc/.
Ввиду того, что корпус 14 сдается буквально через несколько месяцев, рассрочка не предусмотрена. Впрочем, по договоренности с руководством менеджеры могут предоставить рассрочку на «скромную» сумму в несколько сотен тысяч рублей.
Что говорят
Общее впечатление после беглого изучения форумов: недовольных довольно много. В числе претензий: перебои с отоплением в корпусе 13, недочеты в работе Управляющей компании, временное «замирание» строительства корпуса 14, недостаточная социальная инфраструктура района. Однако без досконального изучения ситуации какой-то конкретный вывод я делать поостерегусь.
Для сравнения
|
ЖК |
Площадь, кв. м. |
Цена, млн. руб. |
Срок сдачи |
Материал |
Класс жилья |
Отделка |
|
Стрелковая, мкрн 29 |
52,3 |
3,6 |
IV квартал 2018 |
Монолит |
Эконом |
Нет |
|
Отрадный |
66,3 |
5,6 |
IV квартал 2020 |
Монолит |
Комфорт |
Есть |
|
Большие Мытищи - Тайнинская |
63,3 |
5,6 |
III квартал 2018 |
Монолит |
Комфорт |
Нет |
|
Новое Медведково |
55,6 |
4,9 |
I квартал 2020 |
Монолит |
Эконом |
Есть |
|
Ярославский |
52,8 |
4,9 |
I квартал 2019 |
Монолит |
Эконом |
Нет |
И в заключение
Если говорить о том, что меня смущает, то таких аспектов три. Во-первых, до Москвы все-таки далековато: если у вас нет автомобиля, то до центра столицы придется добираться никак не меньше часа, учитывая все пересадки. Во-вторых, Олимпийский микрорайон со всех сторон окружен складскими и производственными помещениями, так что места для прогулок придется искать на расстоянии 2-3 километров от Новостройки. В-третьих, не могу оставить без внимания очень бурное обсуждение социальной инфраструктуры микрорайона в Интернете. Судя по всему, школ и детских садов в окрестностях немного, и жители закономерно волнуются о том, что резко возросшая «населенность» Олимпийского только усугубит ситуацию.
Как и во многих других случаях, я рекомендовала бы потенциальным покупателям тщательно изучить форумы, съездить на стройплощадку и пообщаться с местными жителями.
Если же судить по генплану и тому, что я увидела лично – «новый облик» Олимпийского микрорайона будет довольно неплох. На смену унылым пятиэтажкам, двухэтажным домишкам и запущенным пустырям придут современные высотные здания. Судя по корпусу 13, район обещает быть довольно уютным, с небанальной архитектурой домов и приятной цветовой гаммой фасадов.
Даже корпус 14 смотрится весьма симпатично – даже несмотря на то, что фасадные работы еще далеки от завершения.
Цены на квартиры – сравнительно невысокие, площади – от скромных до довольно приличных, так что мой вывод таков: среди новостроек ближайшего Подмосковья ЖК «Стрелковая, мкрн. 29» выглядит вполне привлекательно.
Автор: Мария Борискина
Специально для Квартирного контроля

Обсуждение ЖК «Стрелковая, мкрн. 29»: с прицелом на будущее