Жить за МКАДом как бы не очень престижно … Но если расстояние от вашего дома до МКАДа составляет чуть более полукилометра, эта локация вполне может считаться центральной. Выражение «нежилое» означает лишь то, что речь идет об апартаментах, которые строятся по самым высоким стандартам качества и комфорта. Речь идет о жилом комплексе «Тропарево Парк», который строится в Новой Москве в деревне Дудкино.
Как проехать
Адрес новостройки: Москва, Новомосковский административный округ, поселение Мосрентген, деревня Дудкино, улица Цветочная. От МКАДа ехать 5 минут, от центра Москвы – полчаса. Рядом, всего в 150 метрах от ЖК, пролегает Киевское шоссе (оно же Ленинский проспект),
Удобно пользоваться общественным транспортом. По Киевскому шоссе движется множество рейсовых автобусов, а до станции метро «Румянцево» можно дойти пешком за 10 минут.
Что строят
Площадь участка, выделенного для строительства бизнес-парка с гостиницей, составляет 11,2 гектаров. На этой территории построят 7 корпусов бизнес-класса высотой от 16 до 23 этажей и наземный паркинг.
Внешний вид зданий, спроектированных в дизайн-студии ГафаАрхитект, определяют навесные сертифицированные фасады с отделкой из клинкерного кирпича, тонированного в благородных темно-коричневых тонах. Дополнительный шарм фасадам придадут корзины для внешних блоков кондиционеров.
Входные группы спроектированы с учетом потребностей маломобильных групп населения, они имеют два входа на уровне земли и абсолютно прозрачны благодаря панорамному остеклению. В холлах, интерьер которых разрабатывали специалисты студии БАЛКОН, найдется место для консъержей, колясочных и велосипедных.
Помещения на первых этажах площадью от 39 до 213 кв.м. и высотой потолков 3,6 метра займут коммерческие структуры.
Строительство разделено на два этапа.
• Первый этап: корпуса №№ 1.1., 1.2 и 1.3.
• Второй этап: корпуса №№ 2.1, 2.2, 2.3 и 2.4. + наземный паркинг.
Корпуса первой очереди уже построены и сданы в эксплуатацию. Корпуса второй очереди находятся в разной стадии строительства.
• Корпус 2.1 – завершение монтажа ограждающих конструкций
• Корпус 2.2 – монтаж ограждающих конструкций на уровне 4 этажа
• Корпус 2.3 - монтаж ограждающих конструкций на верхних этажах
• Корпус 2.4 – завершение отделки фасада
Корпуса второй очереди одно- двухсекционные, на одном этаже расположено 15 апартаментов. Связь между этажами обеспечат три лифта, для них предусмотрена возможность спуска на подземные этажи.
В двух подземных этажах корпусов №№ 2.2. и 2.4 оборудуют парковку более чем на 700 мест, еще 90 машин можно будет хранить в одноэтажном наземном паркинге. Также на придомовой территории у каждого корпуса можно будет временно размещать до 190 автомашин.
Также в подземной части корпусов предусмотрены внеквартирные кладовые площадью о 2,3 до 4,7 кв.м.
Небольшая дворовая территория будет закрыта для автомобильного транспорта (кроме специального) и оборудована по самым современным стандартам. Предусмотрено озеленение, места для занятий спортом и отдыха, игровые детские зоны. Автор проекта студии ГАФА.
Все помещения сдаются с чистовой отделкой и даже с меблированной кухней.
Комфортность пребывания в апартаментах обеспечит система «умный дом», особенно актуальная для зданий, построенных в рамках концепции «гостиница».
В таблице ниже приведены некоторые технические данные по корпусам.
Таблица 1.
|
№№ корпуса (секции) |
Кол-во этажей |
Общая площ. застр. (кв. м.) |
Кол.секц.
|
Общее кол-во пом/ кладовых/ машмест |
Дата выдачи разр. на стр-во |
Окончание срока действия разр. на стр-во |
Предполагаемая дата введения в эксплуатац. |
|
1.1 |
16+1 подз |
2347 |
1 |
505/444/- |
22.04.2021 г.
|
22.02.2023 г.
|
Выдано РНВ от 21.06.2023 г.
|
|
1.2 |
16+1 подз |
1197 |
1 |
265/218/- |
|||
|
1.3 |
16+1 подз |
1200 |
1 |
270/204/- |
|||
|
2.1 |
23+2 подз |
1201 |
1 |
399/202/- |
18.01.2022 г.
|
18.07.2024 г.
|
2 квартал 2024 г. (первоначально 4 квартал 2023 г.)
|
|
2.2 |
23+2 подз |
8927 |
2 |
660/128/406 |
3 квартал 2025 г. (первоначально4 квартал 2023)
|
||
|
2.3 |
23+2 подз |
2079 |
2 |
638/216/- |
1 квартал 2025 г. (первоначально4 квартал 2023)
|
||
|
2.4 |
23+2 подз |
2292 |
2 |
638/216/307 |
2 квартал 2024 г. (первоначально4 квартал 2023)
|
||
|
2.5 (паркинг) |
1+1 подз |
581 |
1 |
-/-/90 |
2 квартал 2026 г. |
Первоначально планировалось передать помещения собственникам не позднее 30 июня 2024 года. Однако сроки изменились. Теперь, согласно проектной декларации от 20.03.2024 года, выдача ключей в корпусе в корпусе 2.3 назначена на 30.05.2025 года, а в корпусе 2.2 - на 30.05.2026 года.
Кто строит
Строительство на арендованном земельном участке с кадастровым номером 50:21:0110405:1 ведет ООО «Специализированный застройщик «Самолет-Дудкино». Компания создана в 2019 году и ранее никакого жилищного строительства не вела.
Участок ограничен:
• с запада – Киевским шоссе
• с севера – лесным массивом и МКАД
• с востока – индивидуальной жилой застройкой деревни Дудкино
• с юга – улицей Цветочной
Территория входит в зону приаэродромной территории аэродрома Внуково.
Учредители ООО «Самолет Две Столицы» и ООО «Форт».
Коммерческое обозначение застройщика «Группа компаний Самолет», что указывает на его принадлежность к крупнейшему московскому и крупному российскому девелоперу ГК Самолет. На счету данной компании десятки сданных и десятки строящихся жилых комплексов, престижные места в специальных конкурсных проектах в области жилищного строительства.
Застройщик, безусловно, надежный, хотя в его работе имели место сбои в соблюдении сроков сдачи домов в эксплуатацию.
И на данном объекте происходили изменения сроков сдачи домов первой очереди, о чем свидетельствуют отзывы покупателей в Интернете.
Исполнитель работ ООО «Жилстрой-МО».
Сайт
Сайт новостройки https://samolet.ru/project/troparevo-park/ рисует яркую картину современного комплекса типа «апартаменты» со всей окружающей обстановкой.
Видеоролик дает представление о соседних с объектом территориях, панорама с высоты птичьего полета показывает особенности местоположения корпусов.
Выбирать помещения удобно с помощью встроенной в сайт поисковой системы с множеством параметров, таких, как цена, площадь, корпус, вид из окон и других.
Ход строительства отражен в фотоальбоме, а окончательный вид зданий и помещений – в красочных рендерах.
Чтобы познакомиться с документацией, придется зайти на сайт девелопера https://samolet.ru/documents/ .
Дополнительную информацию можно получить здесь https://наш.дом.рф/сервисы/каталог-новостроек/объект/44770?id=44770&objectIds=37157%2C41839%2C41212 и в социальной сети ВКонтакте https://vk.com/troparewopark.
Офис продаж
Офис продаж расположен на территории строительства у корпуса № 1.1.
Сколько стоит
Таблица 2.
|
Тип апартаментов |
Площадь (кв. м) |
Стоимость апартаментов (руб.) |
Стоимость одного квадратного метра (руб.) |
|
Студии |
22,63 – 26,59 |
7 376 880 – 8 154 811 |
325 978-306 687 |
|
Однокомнатные |
33,97 – 49,35 |
7 949 616 – 10 135 559 |
234 019-205 381 |
|
Двухкомнатные |
54,64 – 65,02 |
11 265 897 – 12 448 902 |
206 184-191 462 |
|
Трехкомнатные |
68,67 – 73,05 |
12 033 630 – 14 512 831 |
175 238-198 670 |
Средняя стоимость одного квадратного метра составляет 230 452 рубля.
Для сравнения приведем цены на двухкомнатные апартаменты класса «комфорт» и «бизнес»с отделкой и без в строящихся жилых комплексах Москвы и Московской области.
Таблица 3.
|
Название ЖК |
Ближайшая станция метро или МЦД |
Площадь апарт(кв. м.) |
Стоимость апарт (руб.) |
Стоимость одного кв.м. (руб.) |
Отделка |
Срок сдачи |
|
«Мираполис» |
«Ростокино» |
38,2 |
11 307 200 |
296 000 |
Нет |
3 квартал 2025 г. |
|
«Левел Южнопортовая» |
«Кожуховская» |
35,7 |
10 059 277 |
281 772 |
Нет |
2 квартал 2026 г. |
|
«Эвопарк Измайлово» |
«Шоссе Энтузиастов» |
43,25 |
11 807 250 |
273 000 |
Нет |
1 квартал 2026 г. |
|
«Аквилон Сигнал» |
«Владыкино» |
49,2 |
13 088 440 |
266 025 |
Нет |
4 квартал 2026 г. |
|
«Большая Академическая» |
«Окружная» |
46,2 |
10 681 576 |
231 203 |
Есть |
1 квартал 2026 г. |
|
«Тропарево Парк» |
«Румянцево» |
54,64 |
11 265 897 |
206 184 |
Есть |
2 квартал 2025 г. |
В данном рейтинге «Тропарево» явно не стремится к лидерству.
Планировки
На продажу выставлены студии, одно-, двух-, трехкомнатные апартаменты площадью от 22 до 73 кв.м.
План 2 этажа секции 1 корпуса 2.4
План 18 этажа секции 1 корпуса 2.1
План 14 этажа секции 2 корпуса 2.2
План 17 этажа секции 1 корпуса 2.2
План 18 этажа секции 2 корпуса 2.3
Планировка студии 22,63
Планировка студии 25,67
Планировка студии 26,59
Планировка студии это входная зона площадью от 4,24 до 5,61 кв.м., совмещенный санузел площадью от 3,69 до 4,21 кв.м. и комната площадью от 14,18 до 18,57 кв.м.
Планировка однокомнатных апартаментов 33,97
Планировка однокомнатных апартаментов 40,5
Планировка однокомнатных апартаментов 49,35
Однокомнатные апартаменты имеют входную зону площадью от 4,67 до 7,25 кв.м., совмещенный санузел площадью от 3,75 до 5,27 кв.м., кухню площадью от 9,67 до 20,52 кв.м., спальню площадью от 11,22 до 16,04 кв.м. Иногда имеется гардеробная площадью 3,26 кв.м.
Планировка двухкомнатных апартаментов 54,64
Планировка двухкомнатных апартаментов 56,29
Планировка двухкомнатных апартаментов 65,02
Двухкомнатные апартаменты классического типа это входная зона площадью от 9,3 до 11,59 кв.м. (с учетом внутренних коридоров), совмещенный санузел площадью от 4,29 до 5,32 кв.м., кухня площадью от 18,7 до 25,15 кв.м. и две спальни площадью от 10,05 до 18,7 кв.м. Встречаются кладовые площадью от 1,84 до 2,33 кв.м. Расположение окон линейное и угловое, есть помещения с двумя окнами.
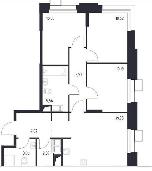
Планировка трехкомнатных апартаментов 68,67
Планировка трехкомнатных апартаментов 69,73
Планировка трехкомнатных апартаментов 73,05
Трехкомнатные апартаменты спроектированы в классическом формате. Здесь имеется входная зона площадью от 10,1 до 10,25 кв.м. (с учетом внутренних коридоров), два санузла с площадью помещений от 3,96 до 5,56 кв.м., кухня площадью от 17,15 до 19,75 кв.м., спальни площадью от 9,92 до 10,62 кв.м. Встречаются кладовые площадью от 2,33 до 3,04 кв.м. Расположение окон линейное и угловое.
Как купить
Покупка апартаментов происходит путем заключения договора долевого участия с застройщиком, как того требует федеральный закон № 214-ФЗ. Средства покупателя размещаются на эскроу счете в Сбербанке России.
Платеж может быть 100% или с привлечением заемных средств банков. В этом случае целесообразно воспользоваться деловыми связями девелопера с российскими банками, в этом случае можно рассчитывать на самые выгодные условия кредита.
На часть лотов застройщик готов предложить скидку до 10%
Можно забронировать выбранную квартиру. На 2 недели за 10 000 рублей, на месяц за 20 000 рублей.
У покупателя могут возникнуть дополнительные расходы, а именно оплата за регистрацию ДДУ. Размер и условия этой оплаты необходимо согласовать с работниками отдела продаж. Не исключено, что застройщик при определенных условиях возьмет эти расходы на себя.
Можно договориться о рассрочке на 3, 6 и 12 месяцев при внесении первоначального взноса в размере 20% от стоимости квартиры.
Инфраструктура
В сданных в эксплуатацию и заселенных корпусах первой очереди уже работают торговые точки и предприятия сферы услуг. Есть небольшие точки питания в расположенном рядом с ЖК бизнес- центре G-10.
На личном и общественном транспорте нетрудно добраться до крупных инфраструктурных центров. В частности:
• ТРЦ «Саларис»,
• ТЦ «ФемилиРум»,
• бизнес-парк «Румянцево»,
• мебель-парк «Румянцево»,
• бизнес-центр «Комсити»,
• магазин электроники «Технопарк»,
• строительный гипермаркет «ЛеруаМерлен»,
• продуктовый гипермаркет «Фуд-Сити»
• продуктовый гипермаркет «Метро»
Высокая транспортная доступность, близость Тропаревского лесопарка сделают проживание в ЖК
удобным и комфортным.
Резюме
Таким образом, можно констатировать, что у новостройки есть немало плюсов:
• Высокая транспортная доступность
• Доступность инфраструктуры
• Титулованный застройщик
• Наличие парковой зоны
Но есть и минусы. Близость крупных транспортных артерий, МКАДа и Киевского шоссе, неизбежно ведет к ухудшению экологической обстановки. Да еще и самолеты летят на посадку в аэропорт Внуково над самыми крышами. Нет на территории ЖК образовательных и медицинских учреждений, на объектах типа «апартаменты» их строительство не обязательно.
И самое главное – нужно четко представлять себе статус приобретаемых квадратных метров. Это нежилые помещения, в которых невозможно зарегистрироваться на постоянной основе и стоимость содержания таких помещений выше, чем жилых.
Группа «Самолет» готова оказать некоторым категориям покупателей помощь в оформлении временной регистрацию на 11 месяцев с возможностью продления. Но ключевое слово здесь «временно». Поэтому выбор, стоящий перед покупателем, может быть сложным. Зато жизнь, если принять правильное решение, будет легкой и безоблачной.
Автор: Андрей Петров
Специально для Квартирного контроля

Обсуждение ЖК «Тропарево Парк»: нежилые помещения с комфортом бизнес-класса