На Юго-Западе Москвы появляются все новые и новые жилые комплексы. Кажется, уже и строить-то негде, но девелоперы все же находят новые площадки. А поскольку россиянам хочется селиться в теплых и солнечных местах, эту тенденцию застройщики отражают в названиях новых жилых комплексов. И пусть прохладный московский климат не совсем похож на краснодарский, обитателям ЖК с названием «Южные сады» наверняка будет всегда тепло и солнечно.
Как проехать
Адрес новостройки Москва, Юго-Западный административный округ, муниципальное образование Южное Бутово, коммунальная зона Гавриково, улица Бартеневская, дом 16.
От МКАД (35А километр) до ЖК можно доехать за 10 минут, расстояние всего 9 километров. От парка Зарядье в центре Москвы – за 40 минут, расстояние 40 километров.
Если ехать на метро, то от станции «Бунинские аллеи» Бутовской линии до ЖК можно дойти за 15 минут.
А для любителей наземного транспорта на улице Бартеневской и Бунинской Аллее устроено множество остановочных пунктов городских автобусов.
Что строят
Под застройку выделен земельный участок площадью 12 гектаров. На нем предполагается возвести 14 корпусов комфорт-класса. Строительство ведется по монолитной технологии, класс энергоэффективности зданий «А» (очень высокий).
Проект реализуется в пять очередей. Будут возводиться здания высотой от 1 до 30 этажей, с отдельно стоящими корпусами, объединенными в ряде случаев общей двухэтажной стилобатной частью. В настоящее время строятся дома первой и второй очереди. Планируется также сооружение встроенно-пристроенного детского сада.
Навесной вентилируемый фасад по проекту бюро MAPArchitects отделают кирпичом, плиткой из фибробетона и керамогранитаили оштукатурят. Входные группы с витражным остеклением и двумя проходами на уровне земли, оформленные по проекту компании Studio 211, вместят в себя зону ресепшен, колясочную и гостевой санузел. В части квартир есть лоджии, балконы или террасы, у всех – корзины для внешнего блока кондиционеров.
В стилобатной части устроят автопарковки и кладовые для хранения личных вещей. Площадь машиномест от 13,3 до 27,4кв.м., кладовых от 2,4 до 20,0 кв.м. Кроме того, на территории обустроят более 150 гостевых парковочных мест для временного хранения автомобилей.
В каждой секции на одном этаже запроектировано от 4 до 11 квартир, вертикальное перемещение жителей обеспечат два или три бесшумных скоростных лифта грузоподъемностью не менее 1000 килограмм.
На первых этажа развернется деятельность коммерческих структур, которые наполнят жизнь новоселов радостью комфортного повседневного потребления. Проектом предусмотрены специальные помещения для коммерческой деятельности площадью от 37,0 до 230,0 кв.м. и высотой потолков до 5,2 метра.
Двор без машин обеспечит условия для спортивных и детских игр, прогулок и спокойного отдыха «южан». Застройщик планирует масштабное озеленение, включая высадку взрослых деревьев и сооружение живых изгородей.
Система видеонаблюдения и охраны возьмет под контроль все внутренние пространства комплекса и дворовую территорию.
Квартиры сдаются с чистовой и предчистовой отделкой. Высота потолков в квартирах 2,99 метра. В окнах двухкамерный стеклопакет в ПВХ профиле. Отопление в квартирах обеспечат стальные панельные радиаторы с нижним подключением.
Чистовая отделка предлагается в шести стилях: «светлая классика», «темная классика», «морской бриз», «теплый песок», «утро в саду» и «вечер на террасе».
При покупке квартиры можно выбирать один из вариантов отделки. Разница в стоимости квадратного метра составит примерно 9 000 рублей.
В таблице ниже приведены некоторые технические данные домам №№ 1 и 2.
Таблица 1.
|
№№ дома |
Кол-во этажей |
Общая площ. застр. (кв. м.) |
Кол.секц.
|
Общее кол-во квартир/машиномест/коммерч. пом./кладовок |
Дата выдачи разр. на стр-во |
Окончание срока действия разр. на стр-во |
Предполагаемая дата введения в эксплуатац. |
|
1 |
1-21-23+2 подз |
8555 |
5 |
1114/304/25/347 |
27.04.2021 г. |
27.07.2024 г. |
4 квартал 2023 года |
|
2 |
1-16-30+2 |
12912 |
10 |
1304/653 |
04.05.2022 г. |
04.05.2025 г. |
2 квартал 2025 г. |
В настоящее время на строительной площадке ведутся работы:
• На корпусах №№ 1.1 – 1.5 выполнено устройство кровли и ведется монтаж инженерных систем
• На корпусе № 2.1. ведутся железобетонные работы на уровне 5 этажа
• На корпусе № 2.2. ведутся железобетонные работы на уровне 9 этажа
• На корпусе № 2.3. ведется разработка котлована
• На корпусе № 2.4. ведутся железобетонные работы на уровне 2 этажа
Выдача ключей намечена:
• В доме №1 на 24.04.2024 г.
• В доме №2 на 31.10.2025 г.
Кто строит
Работы на земельном участке № 77:06:0012006:1000 ведет ООО "Специализированный застройщик «Корона». Компания создана в 2020 году и это пока ее единственный строительный проект.
С севера-запада Территория участка ограничена проектируемым проездом №659, с севера-востока – участками новых очередей ЖК «Южные сады», с юга-запада – проектируемым проездом, с юго-востока – улицей Бартеневской.
Земельный участок находится в субаренде у застройщика. Его учредителями являются ООО «Трансстройинвестдевелопмент» и ООО «Солвент», входящие в структуру группы компаний «А101».
ГК А101 – крупнейший девелопер московского региона. За период с 2016 по 2020 годы им введено в эксплуатацию1,3 миллиона кв.м. жилья. В 2021 году ГК «А101» заняла 8 место в рейтинге Forbs среди 20 девелоперов России.
Компания, безусловно, надежная, но в ее коммерческой истории были и неблагоприятные периоды, когда допускались серьезные отставания от сроков сдачи объектов в эксплуатацию. По данным сайта наш.дом.рф из 83 домов 46введены в эксплуатацию с задержками.
Генеральный подрядчик АО «СУ №111».
Сайт
Сайт новостройки https://a101.ru/projects/yujnie-sadi/?filter_type=price раскрывает все особенности проекта.
Расположение, транспортная доступность, особенности проекта изложены лаконично, но вполне информативно.
В объемных фотоальбомах представлены варианты отделки. Есть информация о ходе строительства и вкладка с документами. В сайт встроен удобный механизм выбора квартиры по параметрам.
Есть ссылка на данные аэрофотосъемки, доступна опция «вид из окна» для каждой квартиры.
На сайте можно скачать презентацию проекта, в которой акцент сделан на поэтажных планах секций.
Дополнительную информацию можно получить на сайте https://наш.дом.рф/сервисы/каталог-новостроек/объект/40163 и в социальной сети https://vk.com/juzhns.
Офис продаж
Офис продаж – двухэтажное здание с площадкой для наблюдения за ходом строительства, построенное рядом с объектом.
В настоящее время в этом помещении ведутся продажи квартир в еще одном объекте ГК А101 – «Бунинские кварталы».
В холле можно познакомиться с макетом новостройки, а в специальном помещении пообщаться с менеджером по продажам.
В арсенале менеджера устное сообщение о достоинствах ЖК, компьютерная графика и красочные печатные материалы.
Сколько стоит
Таблица 2.
|
Тип квартиры |
Площадь (кв. м) |
Стоимость квартиры (руб.) |
Стоимость одного квадратного метра (руб.) |
|
Студия |
21,7 – 33,4 |
7 510 109 – 9 541 500 |
346 088-285 674 |
|
Однокомнатная |
33,2 – 46,6 |
9 422 360 – 11 259 546 |
283 806-241 621 |
|
Двухкомнатная |
38,4 – 55,9 |
9 704 339 – 12 915 408 |
252 717-231 045 |
|
Трехкомнатная |
53,8 – 101,3 |
12 605 595 – 22 274 853 |
234 305-219 890 |
|
Четырехкомнатная |
76,9 – 165,6 |
17 886 807 – 39 536 793 |
232 598-238 749 |
|
Пятикомнатная |
187,8 |
34 488 367 |
183 644 |
Средняя стоимость квадратного метра составляет 244 482 рубля. Отметим, что в июлей 2021 года она была равна 193 272 рубля за квадратный метр. Сопоставляя эти данные можно прийти к выводу о высокой инвестиционной привлекательности проекта.
А какие цены у других застройщиков? Об этом можно узнать из таблицы, приведенной ниже. В ней указаны цены на двухкомнатные квартиры комфорт-класса в строящихся домах в Москве.
Таблица 3.
|
Название ЖК |
Ближайшая станция метро или населенный пункт |
Площадь квартир(кв. м.) |
Стоимость квартир (руб.) |
Стоимость одного кв.м. (руб.) |
Отделка |
Срок сдачи |
|
«Южные сады» |
«Бунинская аллея» |
55,9 |
12 915 408 |
231 045 |
Есть |
2 квартал 2025 г. |
|
«Кантемировская» |
51,5 |
11 644 150 |
226 100 |
Есть |
3 квартал 2025 г. |
|
|
П. Сосенское |
51,1 |
10 880 620 |
212 928 |
Есть |
1 квартал 2025 г. |
|
|
Д.Ватутинки |
52,6 |
10 367 460 |
197 100 |
Есть |
1 квартал 2025 г. |
|
|
«Филатов Луг» |
64,9 |
12 078 928 |
186 116 |
Есть |
2 квартал 2025 г. |
|
|
Д.Середнево |
50,63 |
8 058 962 |
159 173 |
Есть |
1 квартал 2025 г. |
Лидерство за «Южными садами».
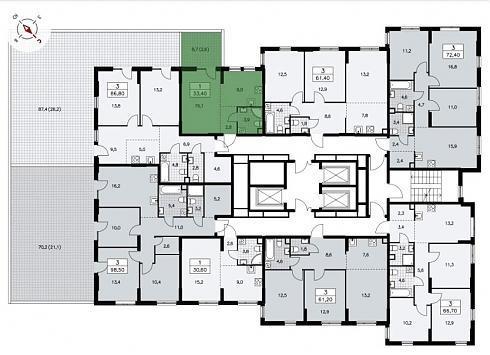
Планировки
В продаже квартиры в домах №№ 1 и 2. Здесь можно выбрать квартиру-студию, одно-, двух-, трех-, четырех- и пятикомнатную квартиру в классической и евро-планировке. Высокие потолки, мастер спальни, с двумя санузлами, с гардеробной и кладовой – чего тут только нет. Площадь квартир от 21,8 до 187,8 кв.м.
План 7 этажа корпуса 1.4
План 13 этажа корпуса 1.2
План 19 этажа корпуса 1.1
План 22 этажа корпуса 1.5
План 2 этажа корпуса 2.2
План 5 этажа корпуса 2.4
План 10 этажа корпуса 2.3
План 15 этажа корпуса 2.1
Планировка студии 21,7
Планировка студии 28,2
Планировка студии 33,4
Планировка студии включает в себя входную зону площадью от 2,8 до 3,9 кв.м., совмещенный санузел площадью от 3,0 до 3,9 кв.м. и универсальное помещение площадью от 12,6 до 24,1 кв.м. Есть балкон площадью 2,5 кв.м. и в некоторых квартирах терраса площадью 8,7 кв.м.
Планировка однокомнатной квартиры 33,2
Планировка однокомнатной квартиры 39,2
Планировка однокомнатной квартиры 46,6
В однокомнатных квартирах запроектированы входная зона площадью от 3,3 до 5,9 кв.м., совмещенный санузел площадью от 4,0 до 4,6 кв.м., кухня площадью от 9,8 до 14,2 кв.м., спальня площадью от 12,1 до 18,1 кв.м. встречается балкон площадью от 2,4 до 2,9 кв.м. и терраса площадью 20,9 кв.м.
Планировка двухкомнатной квартиры 38,4
Планировка двухкомнатной квартиры 51,9
Планировка двухкомнатной квартиры 55,9
В двухкомнатных квартирах находим входную зону площадью от 5,5 до 9,8 кв.м., совмещенный санузел площадью от 4,0 до 5,0 кв.м., кухню площадью от 10,9 до 13,1 в классическом формате и кухню-гостиную площадью 28,8 в евро вариантах. И балкон площадью от 2,5 до 2,7 кв.м. Расположение комнат одностороннее и угловое.
Планировка трехкомнатной квартиры 53,8
Планировка трехкомнатной квартиры 75,9
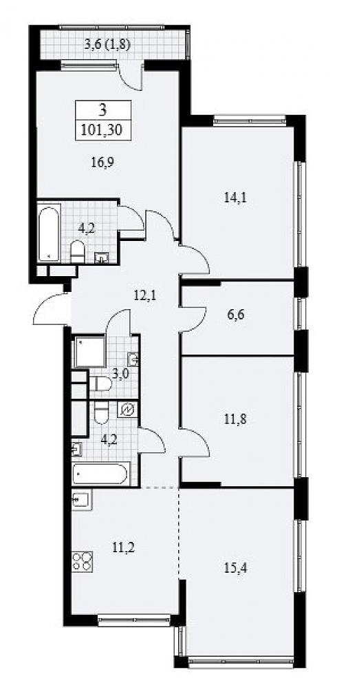
Планировка трехкомнатной квартиры 101,9
В трехкомнатных квартирах планировки предусматривают входную зону площадью от 6,8 до 12,2 кв.м., два или три санузла с площадью помещений от 1,6 до 4,6 кв.м., кухню площадью от 12,6 до 14,5 в классическом и 27,6 кв.м. в евро-варианте, две или три спальни площадью от 10,2 до 16,9 кв.м. Встречается балкон площадью 4,8 кв.м. и гардеробная с окном площадью 6,6кв.м. Расположение комнат угловое и распашное, встречаются мастер-спальни и комнаты с двумя окнами, в том числе угловыми.
Планировка четырехкомнатной квартиры 76,9
Планировка четырехкомнатной квартиры 94,8
Планировка четырехкомнатной квартиры 165,6
Четырехкомнатные квартиры, спроектированные в формате евро, имеют сложную планировку, которой свойственны входная зона площадью от 9,1 до 21,1 (с учетом внутренних коридоров), два или три санузла с площадью помещений от 2,7 до 4,4 кв.м., кухня-гостиная площадью от 16,2 до 52,3 кв.м., три спальни площадью от 9,7 до 14,8 кв.м. и либо балкон площадью 3,1 кв.м., либо терраса площадью от 27,6 до 41,0 кв.м. Встречается гардеробная площадью 1,9 кв.м. Расположение комнат распашное, одно- и двухстороннее. Встречаются мастер-спальни, комнаты с двумя окнами.
Планировка пятикомнатной квартиры 187,8
В двухэтажной пятикомнатной квартире запроектирована входная зона площадью 17,8 кв.м. (с учетом второго этажа), три санузла с площадью помещений от 3,5 до 5,8 кв.м., кухня площадью 37,0 кв.м., четыре спальни площадью от 11,0 до 23,3 кв.м., терраса площадью 47,7 кв.м. Расположение комнат угловое, встречаются комнаты с двумя окнами.
Как купить
Процесс покупки квартиры предельно прост, это можно сделать даже удаленно через он-лайн сервисы, предоставляемые на сайте новостройки. Продажи идут по федеральному закону № 214-ФЗ, с заключением договора долевого участия и размещением средств на счете эскроу в Сбербанке.
Если понадобится кредит, можно обратиться за помощью к специалистам застройщика.
Виды ипотечного кредита могут быть самыми различными. Это и семейная ипотека, и кредит с использованием материнского капитала, военная ипотека, специальные условия для «айтишников».
Можно забронировать выбранную квартиру. Бесплатно на 2 дня, за 10 000 на 7 дней, за 15 000 на 14 дней. Все хлопоты и расходы по регистрации договора долевого участия застройщик берет на себя и все дополнительные расходы могут составить около 2 – 3 тысяч рублей за услугу открытия счетов в банке.
Покупатель может продать свою старую квартиру застройщику и включить вырученные деньги в оплату за новую квартиру.
Возможна рассрочка на следующих условиях:
На ограниченный пул квартир применяется скидка до 10%.
Инфраструктура
Южное Бутово – обжитой городской район, в котором есть все необходимое для жизни с точки зрения инфраструктуры.
Транспортная доступность хорошая, метро и автобусы рядом. Экология приемлемая, если не считать дымящую ТЭЦ рядом с ЖК. Да и где их нет в Москве, этих тепловых объектов? Зато дома всегда тепло, что для «южного сада» немаловажно.
Образовательные и медицинские учреждения – в наличии.
Правда, их наполняемость приближается к критической, ведь каждая новостройка добавляет в их регламент несколько тысяч новых пользователей.
Есть рядом и православный храм, и зеленая аллея, оформленная как аллея памяти.
А чуть подальше зеленые зоны ландшафтного парк в Южном Бутове.
Однако не следует забывать, что от оживленной транспортной артерии, улицы Бартеневской, до окон квартир в первой линии всего 30 метров. Шум автомобильных двигателей, гарь и дорожная пыль, станут, вполне вероятно, нежелательными «соседями» новоселов.
А еще над крышами комплекса летают самолеты, потому что неподалеку сразу три аэропорта – Домодедово, Внуково и Остафьево.
Резюме
Итак, подведем итог.
Плюсы:
• Московская прописка
• Хорошая транспортная доступность
• Собственная инфраструктура
• Функциональные планировки
• Качественное благоустройство
• Инвестиционная привлекательность
Минусы:
• Шум от дороги в домах первой линии
• Высокая стоимость квадратного метра
Плюсы очевидно перевешивают минусы.
Автор: Андрей Петров
Специально для Квартирного контроля

Обсуждение ЖК «Южные сады»: там где солнечно и тепло